Transvaalstraat 75-D

Amsterdam Oost|59m2|4 kamers|Appartement

Bekijk faciliteiten in de buurt
  • Te huur
    • Huur € 1.225 /mnd
    • Servicekosten € 25 /mnd
    • Totale oppervlakte59m2
    • Aantal kamers4
    • Bouwjaar1987
    • Soort bouwBestaande bouw

 

Tip! Verzamel de benodigde documenten alvast. Je hebt ze meteen na de bezichtiging nodig. 

Over de buurt 

  • Stadsdeel Oost
  • In de buurt van de Linnaeusstraat en winkelcentrum Oostpoort
  • Aan de Linnaeusstraat vind je allerlei verschillende winkels, diverse cafés en restaurants
  • Nabij Oosterpark 
  • OV op loopafstand (tram, bus, treinstation Muiderpoort) 

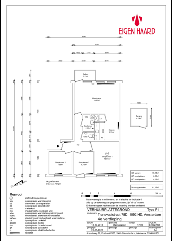
Indeling van de woning (3e verdieping, geen lift)

  • Vloer gratis ter overname. Eigen Haard pleegt hier geen onderhoud aan.
  • Woonkamer met open keuken
    • Elektrisch koken, perilex-aansluiting
    • Let op: zie keukenopstelling op foto's. Plattegrond wijkt iets af van werkelijkheid
  • Balkon, vanuit woonkamer te bereiken
  • 3 slaapkamers
  • Badkamer met douche en wasmachineaansluiting
  • Apart toilet
  • Externe berging 

Parkeren  

Parkeren kan in de buurt van de woning met een bewonersvergunning, als er een vergunning wordt toegekend. Wij verwijzen je naar de gemeente voor informatie hierover. Optioneel is het mogelijk om in de omgeving een parkeerplaats te huren. Er kunnen wachtlijsten zijn. Bekijk ons parkeeraanbod. 

Toewijzing 

Eigen Haard verhuurt huurwoningen in het middensegment op basis van het actuele inkomen (inkomen op dit moment). Zorg er daarom voor dat je actuele inkomen staat ingevuld in je profiel vóórdat je reageert op de woning. Laat dit bedrag vervolgens in je profiel staan totdat de selectie van de woning is geweest. Doe je dit niet? Dan kan het zijn dat wij je bij de gegevenscontrole moeten afwijzen voor de woning. Bekijk hier hoe je het actuele gezamenlijk jaarinkomen bepaald. 

  • Het actuele inkomen van jou en je eventuele medeaanvrager tellen beide voor 100% mee.  
  • Als je zelfstandig ondernemer (zzp'er) bent, dan moet je minimaal 2 jaar werkzaam zijn als zelfstandig ondernemer in de huidige onderneming. Ben je niet minimaal 2 jaar werkzaam als zelfstandig ondernemer in de huidige onderneming, dan kom je niet in aanmerking voor de woning. 
  • Eigen Haard wil graag passend verhuren, kijk wat dat voor jou betekent.  
  • Doorstromers krijgen voorrang bij Eigen Haard. Bij Eigen Haard is een doorstromer iemand die een zelfstandige sociale huurwoning van een corporatie leeg achterlaat binnen stadsregio Amsterdam. Hier leggen we je uit wat het verschil is tussen een doorstromer en een instromer.  
  • Huur je van Eigen Haard een sociale huurwoning en laat je die leeg achter? Je krijgt dan voorrang op andere doorstromers en er geldt voor jou geen maximale inkomenseis, wel de minimale inkomenseis.  

Voorwaarden:

  • De woning is per direct beschikbaar;
  • De geliberaliseerde huurovereenkomst geldt voor onbepaalde tijd, maar minimaal voor één jaar.

Bij het ondertekenen van het huurcontract betaal je:

  • Huur (afhankelijk van de ingangsdatum van het huurcontract);
  • Een waarborgsom (van 1 maand huur);
  • Administratiekosten (€ 16,50).

Disclaimer
De getoonde informatie is door ons met zorg samengesteld op basis van beschikbare gegevens, maar kan afwijken van de werkelijke situatie. Hier kunnen geen rechten aan worden ontleend.

 

Vergelijkbare huurwoningen

Transvaalstraat 67-A

Amsterdam Oost
Appartement | 56m2 | 3 kamers

€ 1.225 /mnd

Sumatrastraat 344

Amsterdam Oost
Appartement | 51m2 | 3 kamers

€ 950 /mnd

In de buurt